| 倉庫・事務所 | 築浅で設備が整う好条件物件。和田岬駅徒歩3分。柳原ICも近く、駐車スペース付きで利便性良好。 | |
| 物件番号 | 3333299 |
|
|---|---|---|
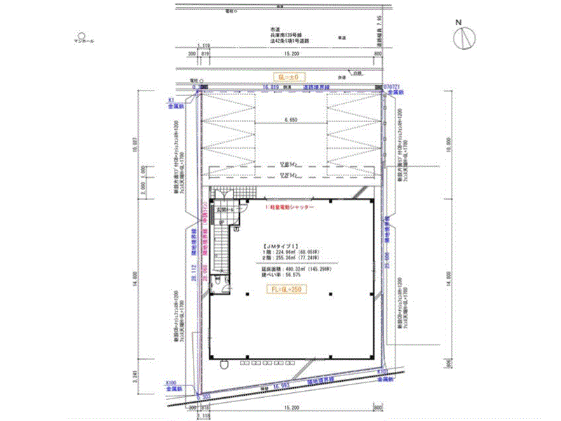
| 所在地 | 兵庫県神戸市 兵庫区和田宮通3丁目 | |
| 沿線/駅 | 山陽線/和田岬駅徒歩3分 | |
| 賃料(月額) | 209万円 (坪単価:14,381円) | |
| 保証金 | 1,900万円 (解約引:627万円) | |
| 面積 |
建物面積:480.32m²/145.3坪 敷地面積:459.88m²/139.1坪 |
|
| 構造/階数 | 鉄骨造/2階建ての1~2階部分 | |
| 各階面積 | 1F:224.96m²/68.05坪 2F:225.36m²/68.17坪 | |
| 接道状況 | ||
| 引渡し | 予定 | |
| 築年月 | 2024/4 | |
| 用途地域 | 準工業地域 | |
| 設備関連 | 電気引き込み有 上水道 本下水 動力電源 給湯 事務所有 1Fフリースペース:フォークリフト用電源、軽量電動シャッター 2Fオフィススペース:個別空調、OAフロア、男女トイレ | |
| 周辺状況 | *近隣民家無 *建ぺい率60%・容積率200% *準防火地域 | |
| その他 | *貸主指定火災保険加入要 *入居にともなう改装工事については、貸主指定業者工事とさせていただきます。 *確認済証番号:令和5年9月13日 第R05確認建築近確0000915号 | |
| 登録情報 |
登録日:2025-12-15 取引形態:仲介 |
|
| 大型車輌 | 駐車場 | 近隣住宅 | プラットホーム | 事務所 | クレーン | リフト/EV |
|---|---|---|---|---|---|---|
| - | - | - | - |
※大型車両・近隣住宅欄の「可」・「無」の表示については住宅地図上から判断したものです。実際については現地をご確認ください。
「全文キーワード」による検索は、大型車両・近隣住宅などの「可・不可」「有・無」の項目は検索されません。
「全文キーワード」による検索は、大型車両・近隣住宅などの「可・不可」「有・無」の項目は検索されません。
- 本ページ更新中に成約することもございます。あらかじめ御了承ください。
- 物件成約の際には情報提供業者へ仲介手数料として家賃の一ヶ月分をお支払いください。
