| 倉庫・事務所 | 駅近 幹線道路沿 大型車輌可 駐車スペース付 綺麗な建物です! | |
| 物件番号 | 3357595 |
|
|---|---|---|
| 所在地 | 大阪府大阪市 西淀川区御幣島5丁目 | |
| 沿線/駅 | 東西線/御幣島駅徒歩13分 | |
| 賃料(月額) | 99万円 (坪単価:9,294円) | |
| 保証金 | 応相談 (解約引:) | |
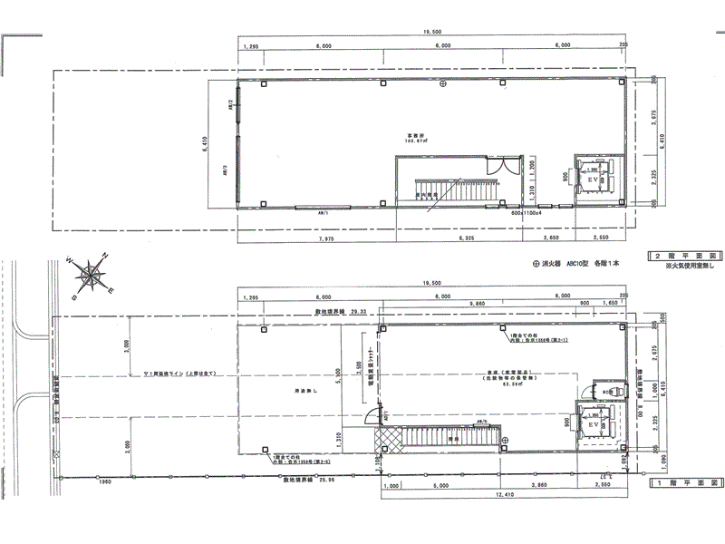
| 面積 |
建物面積:352.14m²/106.5坪 敷地面積:235.27m²/71.2坪 |
|
| 構造/階数 | 鉄骨造/3階建ての1~3階部分 | |
| 各階面積 | 1F:63.59m²/19.23坪 2F:102.67m²/31.05坪 3F:89.56m²/27.09坪 | |
| 接道状況 | ||
| 引渡し | 即時 | |
| 築年月 | 2010/12 | |
| 用途地域 | 工業地域 | |
| 設備関連 | 電気 上水道 下水道 エレベータ 男女トイレ 事務所有 屋上あり | |
| 周辺状況 | *近隣民家無 *建ぺい率60%・容積率200% | |
| その他 | *保証会社加入要(エントランス/総賃料の100%/更新料無し) *火災保険加入要 | |
| 登録情報 |
登録日:2026-01-13 取引形態:仲介 |
|
| 大型車輌 | 駐車場 | 近隣住宅 | プラットホーム | 事務所 | クレーン | リフト/EV |
|---|---|---|---|---|---|---|
| - | - | - |
※大型車両・近隣住宅欄の「可」・「無」の表示については住宅地図上から判断したものです。実際については現地をご確認ください。
「全文キーワード」による検索は、大型車両・近隣住宅などの「可・不可」「有・無」の項目は検索されません。
「全文キーワード」による検索は、大型車両・近隣住宅などの「可・不可」「有・無」の項目は検索されません。
- 本ページ更新中に成約することもございます。あらかじめ御了承ください。
- 物件成約の際には情報提供業者へ仲介手数料として家賃の一ヶ月分をお支払いください。
