| 倉庫・事務所・店舗 | 都島IC至近!JR城北公園通駅徒歩3分の角地にある駐車場付1棟ビル。内装は自由にアレンジできます。 | |
| 物件番号 | 3357902 |
|
|---|---|---|
| 所在地 | 大阪府大阪市 都島区大東町1丁目 | |
| 沿線/駅 | おおさか東線/城北公園通駅徒歩3分 | |
| 賃料(月額) | 49.5万円 (坪単価:7,035円) | |
| 保証金 | 応相談 (解約引:) | |
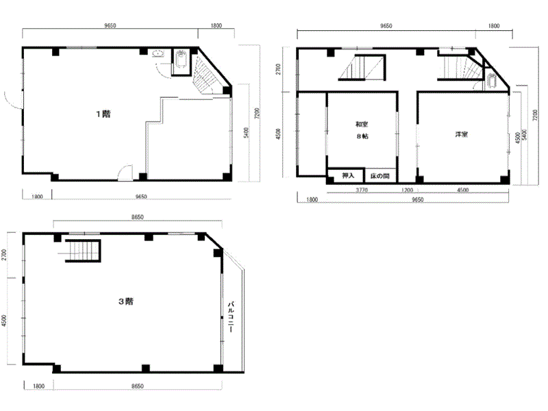
| 面積 | 建物面積:232.58m²/70.4坪 | |
| 構造/階数 | 鉄骨造/3階建ての1~3階部分 | |
| 各階面積 | 1F:79.46m²/24.03坪 2F:79.46m²/24.03坪 3F:73.66m²/22.28坪 | |
| 接道状況 | 前面道路幅員:3m | |
| 引渡し | 即時 | |
| 築年月 | 1980/3 | |
| 用途地域 | 第一種住居地域 | |
| 設備関連 | 都市ガス 電気 上水道 下水道 トイレ専用 冷房 暖房 エアコン インターネット対応 高速インターネット 駐輪場 バイク置き場 火災警報器等設置済 管理人 建物横に2.5台分の駐車場あり 事務所有 | |
| 周辺状況 | *近隣民家有 *建ぺい率80%・容積率200% *準防火地域 | |
| その他 | *検査済証無し *内覧は、前日までにアポイントをお願いします。 *指定の賃貸保証並びに火災保険の加入必須。 *建物東側に約10坪の駐車場あり(条件相談) *建物内に昇降機(リフトあり)メンテは貸主にて負担。 *アパレル関連にお薦め。 *トラブル防止の為、内覧時には借主様にて採寸をお願いします。 *各種条件相談してください。 *現状を優先とします。 *本面積は駐車場は含みません。 *倉庫として使用可能(別途条件相談可能) *引渡状態相談可能(基本現状引渡) | |
| 登録情報 |
登録日:2026-01-09 取引形態:仲介 |
|
| 大型車輌 | 駐車場 | 近隣住宅 | プラットホーム | 事務所 | クレーン | リフト/EV |
|---|---|---|---|---|---|---|
| - | - |
※大型車両・近隣住宅欄の「可」・「無」の表示については住宅地図上から判断したものです。実際については現地をご確認ください。
「全文キーワード」による検索は、大型車両・近隣住宅などの「可・不可」「有・無」の項目は検索されません。
「全文キーワード」による検索は、大型車両・近隣住宅などの「可・不可」「有・無」の項目は検索されません。
- 本ページ更新中に成約することもございます。あらかじめ御了承ください。
- 物件成約の際には情報提供業者へ仲介手数料として家賃の一ヶ月分をお支払いください。
