| 倉庫 | 駅近 駐車スペース付 | |
| 物件番号 | 3360239 |
|
|---|---|---|
| 所在地 | 大阪府大阪市 此花区島屋3丁目 | |
| 沿線/駅 | 桜島線/安治川口駅徒歩4分 | |
| 賃料(月額) | 42万円 (坪単価:8,119円) | |
| 保証金 | 応相談 (解約引:) | |
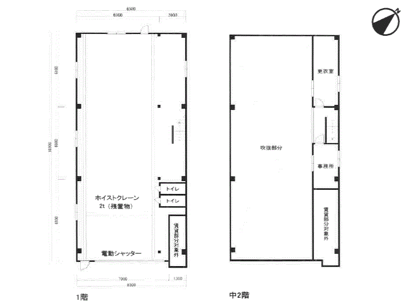
| 面積 | 建物面積:171m²/51.7坪 | |
| 構造/階数 | 鉄骨造/3階建ての1~2階部分 | |
| 各階面積 | 1F:151.m²/45.67坪 2F:20.m²/6.05坪 | |
| 接道状況 | ||
| 引渡し | 即時 | |
| 築年月 | 1989/5 | |
| 用途地域 | 準工業地域 | |
| 設備関連 | 電動シャッター ホイストクレーン2t(残置物)有り 男女トイレ 事務所有 | |
| 周辺状況 | *近隣民家有 *建ぺい率60%・容積率200% *準防火地域 | |
| その他 | *貸主は適格請求発行事業者ではありません。 *更新料なし *工場使用可(但し、騒音や臭気のある業種は相談) | |
| 登録情報 |
登録日:2025-12-03 取引形態:仲介 |
|
| 大型車輌 | 駐車場 | 近隣住宅 | プラットホーム | 事務所 | クレーン | リフト/EV |
|---|---|---|---|---|---|---|
| - | - | - |
※大型車両・近隣住宅欄の「可」・「無」の表示については住宅地図上から判断したものです。実際については現地をご確認ください。
「全文キーワード」による検索は、大型車両・近隣住宅などの「可・不可」「有・無」の項目は検索されません。
「全文キーワード」による検索は、大型車両・近隣住宅などの「可・不可」「有・無」の項目は検索されません。
- 本ページ更新中に成約することもございます。あらかじめ御了承ください。
- 物件成約の際には情報提供業者へ仲介手数料として家賃の一ヶ月分をお支払いください。
