貸し倉庫(貸倉庫) 物件検索サイト - 大阪を中心に関西圏・東京都を中心に関東圏の貸し倉庫(貸倉庫)事業用賃貸物件を取り扱っております

倉庫 駅近×二方道路に面する好条件物件。駐車スペース付きで、出入りもしやすい魅力的な立地です。
物件番号 3361885

所在地 大阪府東大阪市衣摺2丁目
沿線/駅 おおさか東線/衣摺加美北駅徒歩10分
賃料(月額) 165万円  (坪単価:5,572円)
保証金 応相談  (解約引:)
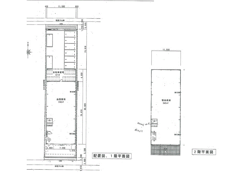
面積 建物面積:978.76m²/296.1坪
敷地面積:687.77m²/208.1坪
構造/階数 鉄骨造/3階建ての1~3階部分
各階面積 1F:288.3m²/87.21坪 2F:345.23m²/104.43坪 3F:245.23m²/74.18坪
接道状況 前面道路幅員:4m
引渡し 予定
築年月 2007/7
用途地域 準工業地域
設備関連 リフト
周辺状況 *近隣民家有 *土曜・祝日利用可 *?型トラック搬入可 **建ぺい率60%・容積率200% *準防火地域
その他 *保険等:要2年25,000円 *保証会社加入要 総賃料の100%
登録情報 登録日:2026-02-19
取引形態:仲介
  • パノラマ写真
  • 物件写真
  • 概略地図
  • 契約までの流れ
大型車輌 駐車場 近隣住宅 プラットホーム 事務所 クレーン リフト/EV
- -
※大型車両・近隣住宅欄の「可」・「無」の表示については住宅地図上から判断したものです。実際については現地をご確認ください。
「全文キーワード」による検索は、大型車両・近隣住宅などの「可・不可」「有・無」の項目は検索されません。

  • 本ページ更新中に成約することもございます。あらかじめ御了承ください。
  • 物件成約の際には情報提供業者へ仲介手数料として家賃の一ヶ月分をお支払いください。
三基建設株式会社
大阪市淀川区西中島1丁目13番15号
TEL:06-6304-0999 FAX:06-6304-7384 E-mail: toiawase@sanki.info

ページの上へ戻る